4-room Apartment for Sale in San Isidro

Residential Properties - Apartments en San Isidro · Buenos Aires
USD 89.000 Sale 4 rooms 1 62 m² 59 m² covered

Key information

Operation
Sale
Property type
Departamento Estándar
Total area
62 m²
Covered area
59 m²
Rooms
4
Bathrooms
1
Bedrooms
3

Amenities & Features

Rooms
  • Bathroom
  • Kitchen
  • Bedroom
  • Laundry Room
  • Living/Dining Room
Features
  • North Facing
  • Closets

Property Description

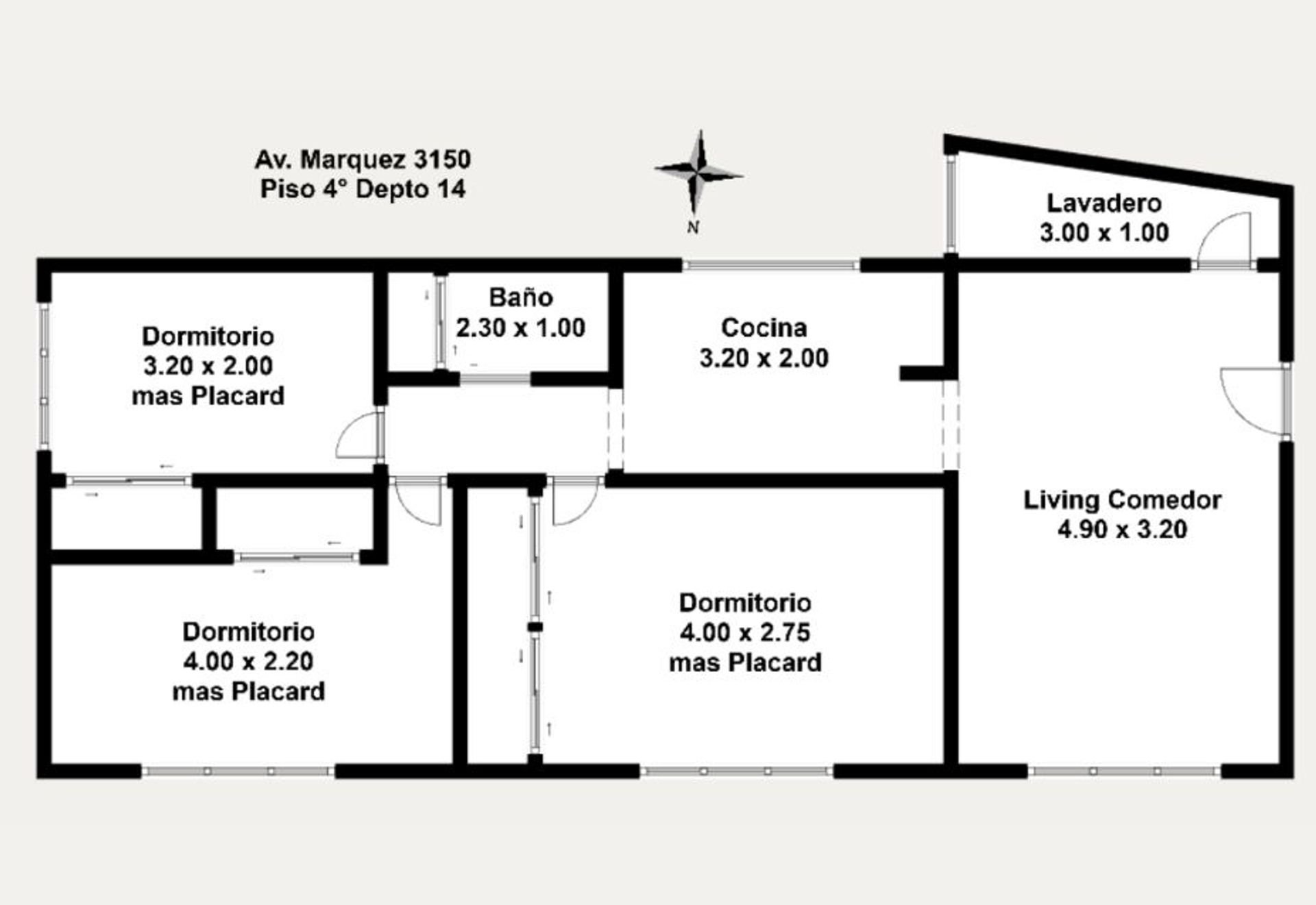
Apartment with 3 bedrooms with closets, no shared walls with neighbors, located in a complex with a wide uncovered parking area and an automated vehicle entrance gate. The property stands out for its brightness and ventilation in all rooms, ensuring a fresh and pleasant living experience. The complex features a gated park, playground, trees and lawn, creating a safe and green environment. The building has two elevators and is well maintained, offering comfort and tranquility to its residents.

The interior space is organized into the following rooms and dimensions: living and dining room 4.90 m x 3.20 m; kitchen 3.20 m x 2.00 m; bathroom 2.30 m x 1.00 m; master bedroom 4.00 m x 2.75 m with closet; second bedroom 4.00 m x 2.20 m with closet; third bedroom 3.20 m x 2.00 m with closet; and laundry room 3.00 m x 1.00 m. Each space has been designed to maximize functionality and comfort, providing a welcoming and practical environment for daily life.

Location & Surroundings

San Isidro · Buenos Aires

Send Inquiry to 4-room Apartment for Sale in San Isidro