VENTA PH en Olivos

Residential Properties - PH en Vicente Lopez · Olivos · Buenos Aires
USD 245.000 Sale 4 rooms 2 1 141 m² 105 m² covered

Key information

Operation
Sale
Property type
PH
Condition
Excellent
Total area
141 m²
Covered area
105 m²
Rooms
4
Bathrooms
2
Bedrooms
3

Amenities & Features

Rooms
  • Bathroom
  • Kitchen/Dining Room
  • Bedroom
  • Service Room
  • Living/Dining Room
  • Patio
  • Guest Toilet
Features
  • Closets
Amenities
  • Air Conditioning
Services
  • Water
  • Running Water
  • Sewage
  • Electricity
  • Gas
  • Internet
  • Satellite TV

Property Description

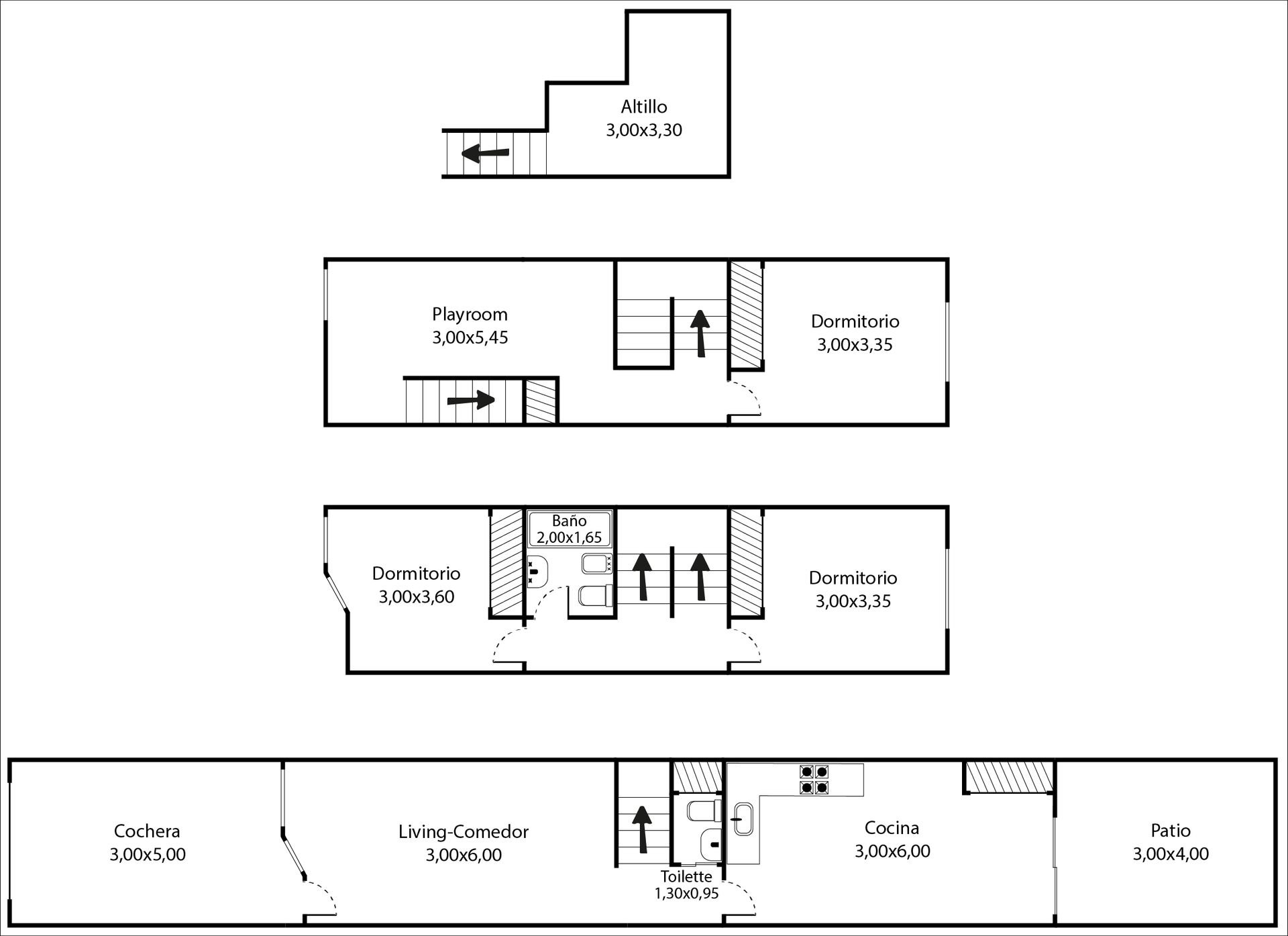
This 3‑bedroom apartment is a spacious and functional penthouse developed over three floors.

Ground Floor

Living‑dining room 3 m2 × 6 m2 with porcelain tile floors and storage space
Kitchen‑dining area 6 m2 × 3 m2 fully renovated with pantry, under‑counter, connection for dishwasher and hidden laundry area
Patio 3 m2 × 4 m2
Reception toilet with storage space
Garage

First Floor

1st bedroom 3.60 m2 × 3 m2 facing front with wardrobe
2nd bedroom 3.35 m2 × 3 m2 facing rear with wardrobe
Full bathroom

Second Floor

3rd bedroom 3.35 m2 × 3 m2 with wardrobe
Playroom 5.45 m2 × 3 m2 with library and storage locker
Attic 3.30 m2 × 3 m2 ideal for home office, desk or additional room

The property features Italian porcelain tile floors.
Security door with digital peephole.
PVC openings with double hermetic glass (DVH).
ROTOFRANK hardware imported from Germany.
Sectorized electrical installation.
4 air‑conditioning units.

Located in the residential area of Olivos, two blocks from Av. Maipú, the Presidential Estate, and three blocks from the MITRE branch train station “Bartolomé Mitre”.
Buses: 19, 21, 59, 60, 71, 130, 152, 161, 168, 184.

Location & Surroundings

Vicente Lopez · Olivos · Buenos Aires

Send Inquiry to VENTA PH en Olivos