Departamento 3 amb Venta Balconada Nordelta Suite

Propiedades Residenciales - Tríplex en Tigre · Nordelta Los Castaños · Nordelta · Buenos Aires
USD 254.000 Venta 3 amb. 2 1 175 m² 95 m² cub.

Información principal

Operación
Venta
Tipo de propiedad
Departamento Triplex
Condición
Excelente
Superficie total
175 m²
Superficie cubierta
95 m²
Ambientes
3
Baños
2
Dormitorios
2
Barrio Privado

Servicios y Comodidades

Ambientes
  • Balcón
  • Baño
  • Cocina/Comedor
  • Comedor
  • Dormitorio
  • Living
  • Quincho
  • Terraza
  • Vestidor
Características
  • Desayunador
  • Disposición Interno
  • Orientación Norte
  • Placard
Comodidades
  • Área de juegos infantiles
  • Bar
  • Calefacción
  • Cancha de futbol
  • Cancha de Paddle
  • Estacionamiento para visitas
  • Losa Radiante
  • Pileta
  • Salón de usos múltiples
  • Seguridad
  • Solarium
Servicios
  • Agua
  • Desague Cloacal
  • Electricidad

Descripción del Inmueble

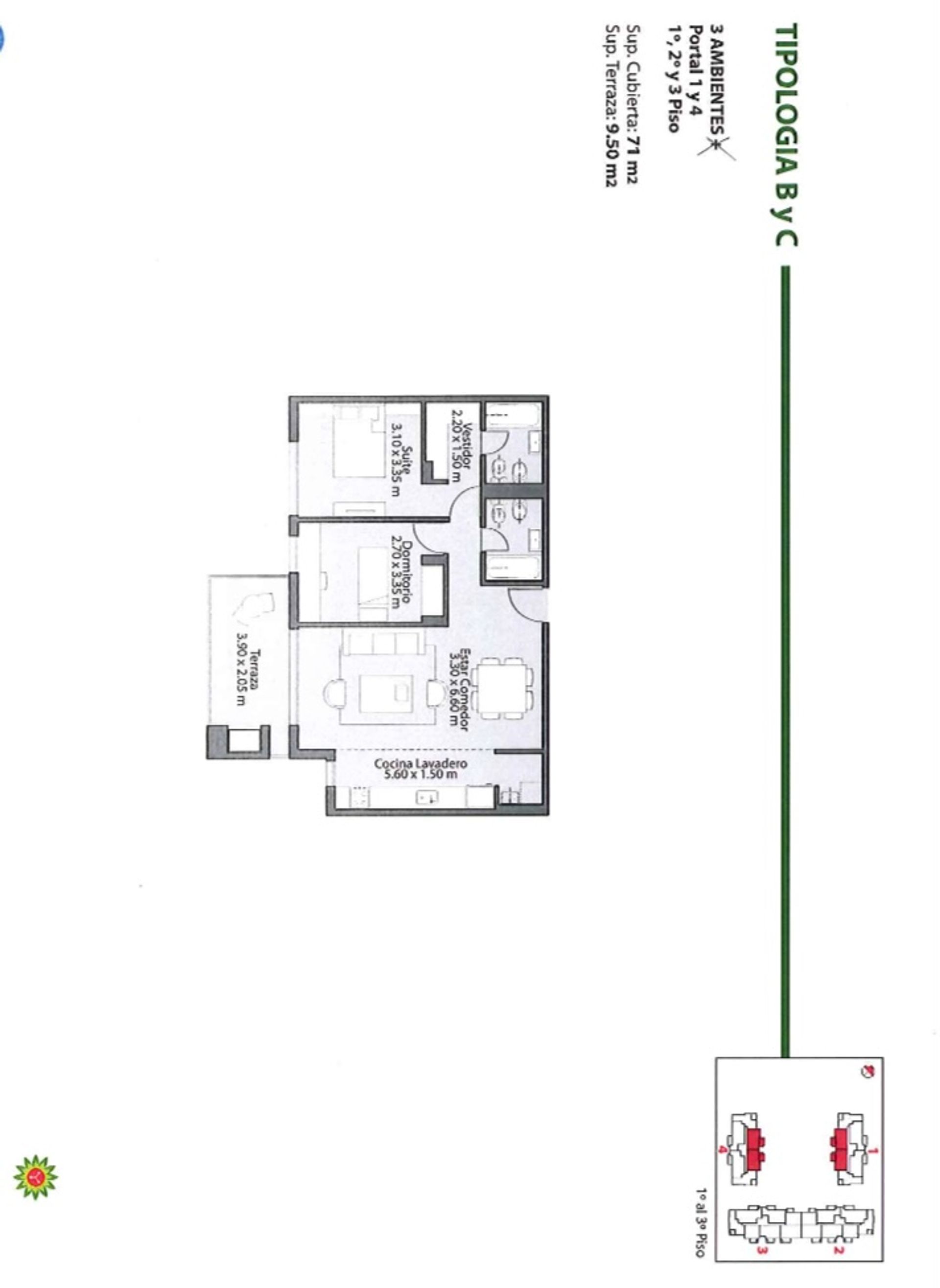
Departamento triplex de 3 ambientes con 4 terrazas propias, suite, quincho, piscina y cochera semicubierta. Ubicado en La Balconada, el único complejo de townhouses dentro del Barrio Los Castaños, Nordelta. Con diseño moderno, detalles de calidad y excelente ubicación, a metros del acceso Nordelta–Bancalari, cercano a la Clínica Swiss Medical, polo universitario en desarrollo y futura estación de tren.

Primer piso: estar comedor con cocina integrada, barra desayunadora con revestimiento de silestone, conexión para lavavajillas y lavarropas, espacio para despensa o placard, salida a balcón terraza y toilette de recepción.

Segundo piso: suite con vestidor, baño completo con terraza; dormitorio con terraza y baño completo.

Tercer piso: terraza de 50 m² con pérgola y parrilla.

Cochera semicubierta propia.

Detalles de terminación: pisos de porcelanato, aberturas con DVH doble vidriado hermético, losa radiante, cocina eléctrica con muebles bajo y sobre mesada, frentes de placard, construcción tradicional de hormigón.

Amenities del complejo La Balconada: SUM / coworking, piscina con solárium, cocheras de cortesía.

Amenities del barrio Los Castaños: club house con restaurante, canchas de tenis, fútbol sintético y paddle, playón deportivo y plazas para niños, piscina con vista al lago central, SUM y parrilla, laguna para embarcaciones sin motor.

El complejo cuenta con pileta, SUM propio, club house y restaurante sobre el lago, canchas de tenis, cancha de fútbol, plaza de juegos y cocheras de cortesía.

Excelente ubicación: La Balconada es un condominio de residencias en altura ubicado en el barrio Castaños de Nordelta. Se encuentra a metros del Acceso Bancalari, cerca de la futura estación de trenes de Nordelta y de una futura área comercial. El acceso es de los mejores de Nordelta con salida rápida a Bancalari y Panamericana.

Expensas Julio 2025: $760.000 (incluye Aysa Arba e Impuesto municipal).

Ubicación y Entorno

Tigre · Nordelta Los Castaños · Nordelta · Buenos Aires

Enviar Consulta a Departamento 3 amb Venta Balconada Nordelta Suite

Atención: Esta propiedad posiblemente no se encuentre disponible.

Contactate con nosotros para verificar su disponibilidad actual o consultar por propiedades similares.