PH 3 amb, local y patio en venta Don Torcuato

Propiedades Residenciales - PH en Tigre · Don Torcuato · Buenos Aires
Posiblemente Vendida USD 73.000 Venta 3 amb. 1 204 m² 112 m² cub.

Información principal

Operación
Venta
Tipo de propiedad
PH
Superficie total
204 m²
Superficie cubierta
112 m²
Ambientes
3
Baños
1
Dormitorios
2
Apto Crédito
Uso Profesional
Uso Comercial

Servicios y Comodidades

Ambientes
  • Baño
  • Cocina
  • Cocina/Comedor
  • Dormitorio
  • Living
  • Living/Comedor
  • Patio
Características
  • Disposición Frente
Comodidades
  • Calefacción
Servicios
  • Agua
  • Electricidad
  • Gas

Descripción del Inmueble

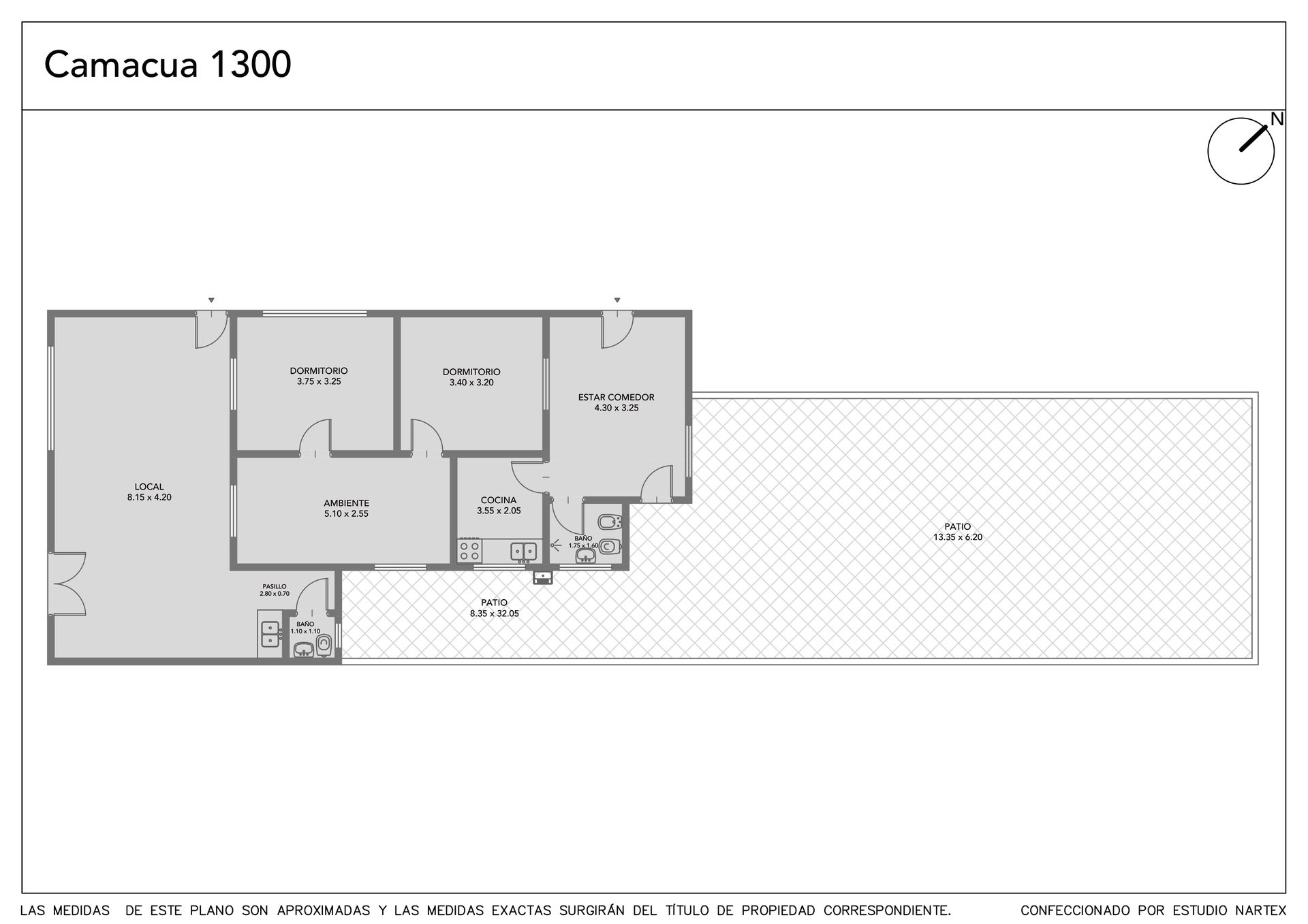
Situada en la zona de Don Torcuato, esta propiedad ofrece un espacio de 205 m², distribuidos en 113 m² cubiertos y 92 m² descubiertos sobre un terreno de 173 m². La configuración combina un local comercial al frente con un PH de 3 ambientes al fondo, ideal para quienes buscan un espacio funcional y versátil.

El interior cuenta con 2 dormitorios, 1 baño completo, una cocina y un amplio living que se integra con el comedor. El patio trasero brinda un espacio al aire libre para disfrutar de momentos de tranquilidad o para crear un área de recreación. El acceso principal se encuentra en el frente, aunque actualmente se realiza a través de la vía lateral; se contempla la posibilidad de corregir la entrada para optimizar la circulación y la accesibilidad.

La vivienda está equipada con calefacción a gas y cuenta con los servicios esenciales de electricidad y agua. Su clasificación como apta para crédito y uso profesional la convierte en una opción atractiva para inversores y propietarios que valoran la flexibilidad de la propiedad.

El potencial de esta casa radica en su combinación de espacio cubierto y descubierto, su ubicación estratégica en Don Torcuato y la posibilidad de adaptar el acceso y el uso de los ambientes según las necesidades del futuro propietario.

Ubicación y Entorno

Tigre · Don Torcuato · Buenos Aires

Enviar Consulta a PH 3 amb, local y patio en venta Don Torcuato

Atención: Esta propiedad posiblemente no se encuentre disponible.

Contactate con nosotros para verificar su disponibilidad actual o consultar por propiedades similares.