Venta Departamento 3 amb. a estrenar, San Isidro

Propiedades Residenciales - Departamentos en San Isidro · Buenos Aires
USD 250.000 Venta 3 amb. 2 2 87 m² 80 m² cub.

Información principal

Operación
Venta
Tipo de propiedad
Departamento Estándar
Superficie total
87 m²
Superficie cubierta
80 m²
Ambientes
3
Baños
2
Dormitorios
2

Servicios y Comodidades

Ambientes
  • Balcón
  • Baño
  • Living

Descripción del Inmueble

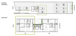
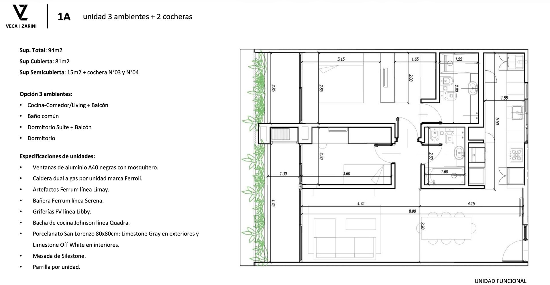
Departamento de 3 ambientes con balcón, 2 cocheras y piscina en la zona de Jacinto Díaz. La unidad cuenta con 87,32 m² de superficie total, ofreciendo espacios amplios y luminosos diseñados para el confort diario. El salón-comedor, con cocina integrada, se abre a un balcón frontal que invita a disfrutar del aire libre. El dormitorio principal, en suite, también dispone de acceso al balcón, mientras que el segundo dormitorio ofrece comodidad y funcionalidad. Un baño completo completa la distribución.

El edificio, en fase avanzada de obra, presenta una estructura de hormigón finalizada y trabajos de instalaciones y acabados en ejecución, garantizando una construcción sólida y de alta calidad. Además, la propiedad incluye dos cocheras fijas (N° 03 y 04) y acceso a la piscina del conjunto.

La entrega se proyecta para abril‑mayo 2026, ofreciendo una excelente oportunidad para quienes buscan una vivienda moderna, bien distribuida y con amplios espacios exteriores.

Ubicación y Entorno

San Isidro · Buenos Aires

Enviar Consulta a Venta Departamento 3 amb. a estrenar, San Isidro