Venta De Departamento En San Isidro

Propiedades Residenciales - Departamentos en San Isidro · Buenos Aires
Posiblemente Vendida USD 260.000 Venta 3 amb. 2 2 94 m² 81 m² cub.

Información principal

Operación
Venta
Tipo de propiedad
Departamento SemiPiso
Condición
Excelente, A Estrenar
Superficie total
94 m²
Superficie cubierta
81 m²
Ambientes
3
Baños
2
Dormitorios
2
Accesible

Servicios y Comodidades

Ambientes
  • Baño
  • Balcón
  • Cocina
  • Cocina/Comedor
  • Comedor
  • Dormitorio
  • Lavadero
  • Living
  • Terraza
  • Vestidor
Características
  • Agua Potable
  • Disposición Contrafrente
  • Orientación Norte
  • Parrilla
Comodidades
  • Pileta
Servicios
  • Agua
  • Agua Corriente
  • Desague Cloacal
  • Electricidad
  • Gas

Descripción del Inmueble

Ubicado sobre la calle Jacinto Díaz frente a la plaza, en el corazón de La Calabria, este departamento de 3 ambientes combina la tranquilidad de un entorno residencial de casas bajas con la comodidad de espacios verdes cercanos.

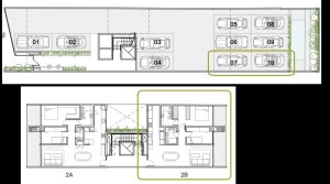
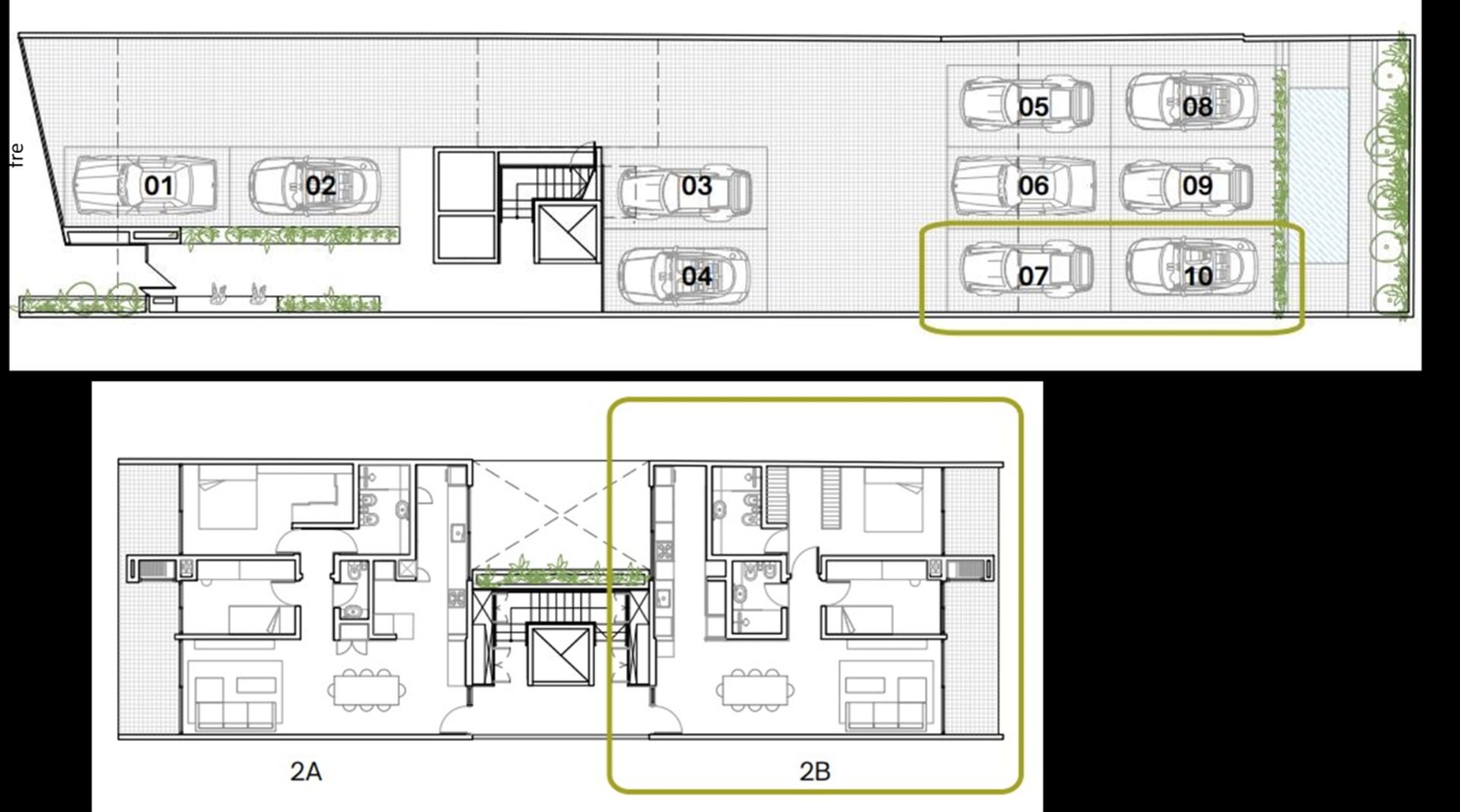
La vivienda cuenta con una cocina comedor y living que se abre a un balcón equipado con parrilla, ideal para disfrutar de momentos al aire libre. Dos baños completos y dos dormitorios, uno en suite y el otro con salida al balcón, ofrecen privacidad y comodidad. Además, la propiedad dispone de dos cocheras y una piscina privada que realza el estilo de vida relajado y exclusivo de la zona.

Las ventanas de aluminio A40, equipadas con mosquiteros, garantizan un ambiente fresco y protegido. La calefacción se alimenta de una caldera a gas dual marca Ferroli, mientras que los artefactos de la cocina pertenecen a la línea Limay de Ferrum. La bañera Ferrum Serena, la grifería FV Libbi y la bacha de cocina Johnson Quadra añaden un toque de elegancia funcional. Los suelos de porcelanato San Lorenzo 80x80 cm y los acabados en Limestone Gray y off white crean una estética contemporánea y armoniosa. La mesada de silestone y el frente de placard en los dormitorios complementan el diseño interior. La orientación norte del segundo dormitorio, contrafrente, asegura una luz natural agradable durante todo el día.

El edificio presenta una obra avanzada, con estructura de hormigón finalizada y trabajos de instalaciones y terminaciones en ejecución, garantizando una construcción sólida y de alta calidad. Se espera la entrega aproximada entre abril y mayo de 2026.

Ubicación y Entorno

San Isidro · Buenos Aires

Enviar Consulta a Venta De Departamento En San Isidro

Atención: Esta propiedad posiblemente no se encuentre disponible.

Contactate con nosotros para verificar su disponibilidad actual o consultar por propiedades similares.