Depto 2 Amb en venta - Florida - APTO CREDITO

Propiedades Residenciales - Departamentos en Vicente Lopez · Buenos Aires
USD 79.000 Venta 2 amb. 1 37 m²

Información principal

Operación
Venta
Tipo de propiedad
Departamento Estándar
Condición
Bueno
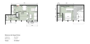
Superficie total
37 m²
Superficie cubierta
37 m²
Ambientes
2
Baños
1
Dormitorios
1
Apto Crédito

Servicios y Comodidades

Ambientes
  • Baño
  • Dormitorio
  • Living/Comedor

Descripción del Inmueble

Ubicado en Av. Maipú 900, entre Francisco Melo y Haedo, este apartamento de un dormitorio se encuentra en el segundo piso de una construcción de estilo clásico, con acceso por escalera y orientación al contra frente, lo que garantiza un ambiente tranquilo y bien aislado del tráfico urbano.

El interior ofrece una distribución funcional: cocina integrada con mobiliario superior e inferior, y una barra desayunador que se abre al living comedor, creando un espacio amplio y de fácil circulación. La zona de estar se beneficia de un balcón francés, que aporta abundante luz natural y un punto de escape al aire libre.

El dormitorio dispone de un placard empotrado, optimizando el espacio de almacenamiento. El baño completo incluye ducha y una instalación dedicada para lavarropa, lo que facilita la vida cotidiana y la organización.

La superficie total cubierta es de 37 m², un tamaño ideal para quienes buscan comodidad sin exceso de espacio. Esta propiedad combina la conveniencia de su ubicación con un diseño pensado para la vida cotidiana, convirtiéndola en una excelente opción tanto para vivienda propia como para inversión.

Ubicación y Entorno

Vicente Lopez · Buenos Aires

Enviar Consulta a Depto 2 Amb en venta - Florida - APTO CREDITO