Venta Casa multifamiliar Martinez con jardin

Propiedades Residenciales - Casas en Mart - Santa Fe - Fleming · San Isidro · Martinez · Buenos Aires
Posiblemente Vendida USD 280.000 Venta 8 amb. 3 2 305 m² 203 m² cub.

Información principal

Operación
Venta
Tipo de propiedad
Casa
Condición
Muy Bueno
Superficie total
305 m²
Superficie cubierta
203 m²
Ambientes
8
Baños
3
Dormitorios
6
Apto Crédito

Servicios y Comodidades

Ambientes
  • Altillo
  • Baño
  • Balcón
  • Cocina
  • Cocina/Comedor
  • Comedor
  • Dormitorio
  • Estudio
  • Jardín
  • Lavadero
  • Living
  • Patio
  • Playroom
  • Terraza
Características
  • Disposición Frente
  • Orientación Oeste
  • Permite Mascotas
  • Placard
Comodidades
  • Áreas Verdes
Servicios
  • Agua
  • Desague Cloacal
  • Electricidad
  • Gas
  • Internet
  • Teléfono

Descripción del Inmueble

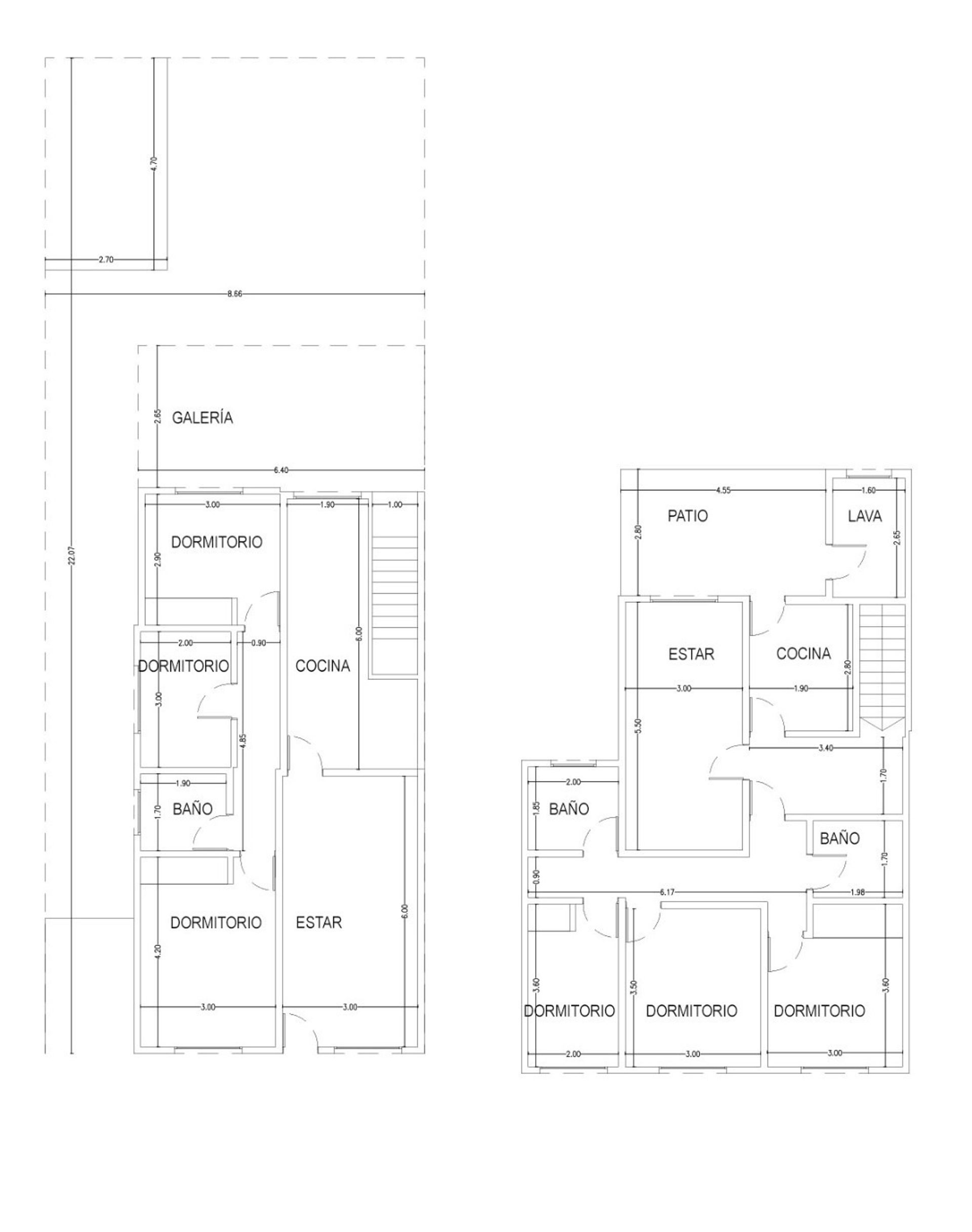
Casa multifamiliar ubicada en la zona de Martínez, sobre un terreno de 8,66 x 22 metros. La vivienda se distribuye en dos plantas, con acabados modernos y en perfecto estado. En la planta baja se encuentra un amplio living, una cocina integrada con comedor, tres habitaciones y un baño completo. Además, la propiedad cuenta con un jardín privado, una galería y acceso directo a la cochera desde la calle, así como una escalera que conecta con el jardín para llegar al segundo nivel.

En la planta alta, una escalera desde el jardín conduce a un hall de recepción. Se dispone de una cocina y un lavadero independientes, conectados con un balcón terraced. El área de living y comedor es espaciosa y luminosa, acompañada de tres habitaciones adicionales y dos baños completos. Un altillo con entrepiso ofrece la posibilidad de crear una cuarta habitación o un espacio multifuncional.

Ubicación y Entorno

Mart - Santa Fe - Fleming · San Isidro · Martinez · Buenos Aires

Enviar Consulta a Venta Casa multifamiliar Martinez con jardin

Atención: Esta propiedad posiblemente no se encuentre disponible.

Contactate con nosotros para verificar su disponibilidad actual o consultar por propiedades similares.