Venta Casa en Munro 3 ambientes con cochera

Propiedades Residenciales - Casas en Vicente Lopez · Munro · Buenos Aires
USD 109.000 Venta 3 amb. 1 1 162 m² 76 m² cub.

Información principal

Operación
Venta
Tipo de propiedad
Casa
Condición
Regular, A Refaccionar
Superficie total
162 m²
Superficie cubierta
76 m²
Ambientes
3
Baños
1
Dormitorios
2
Apto Crédito
Uso Profesional
Uso Comercial
Accesible

Servicios y Comodidades

Ambientes
  • Baño
  • Cocina
  • Cocina/Comedor
  • Comedor
  • Dormitorio
  • Lavadero
  • Living
  • Living/Comedor
  • Patio
  • Terraza
Características
  • Orientación Norte

Descripción del Inmueble

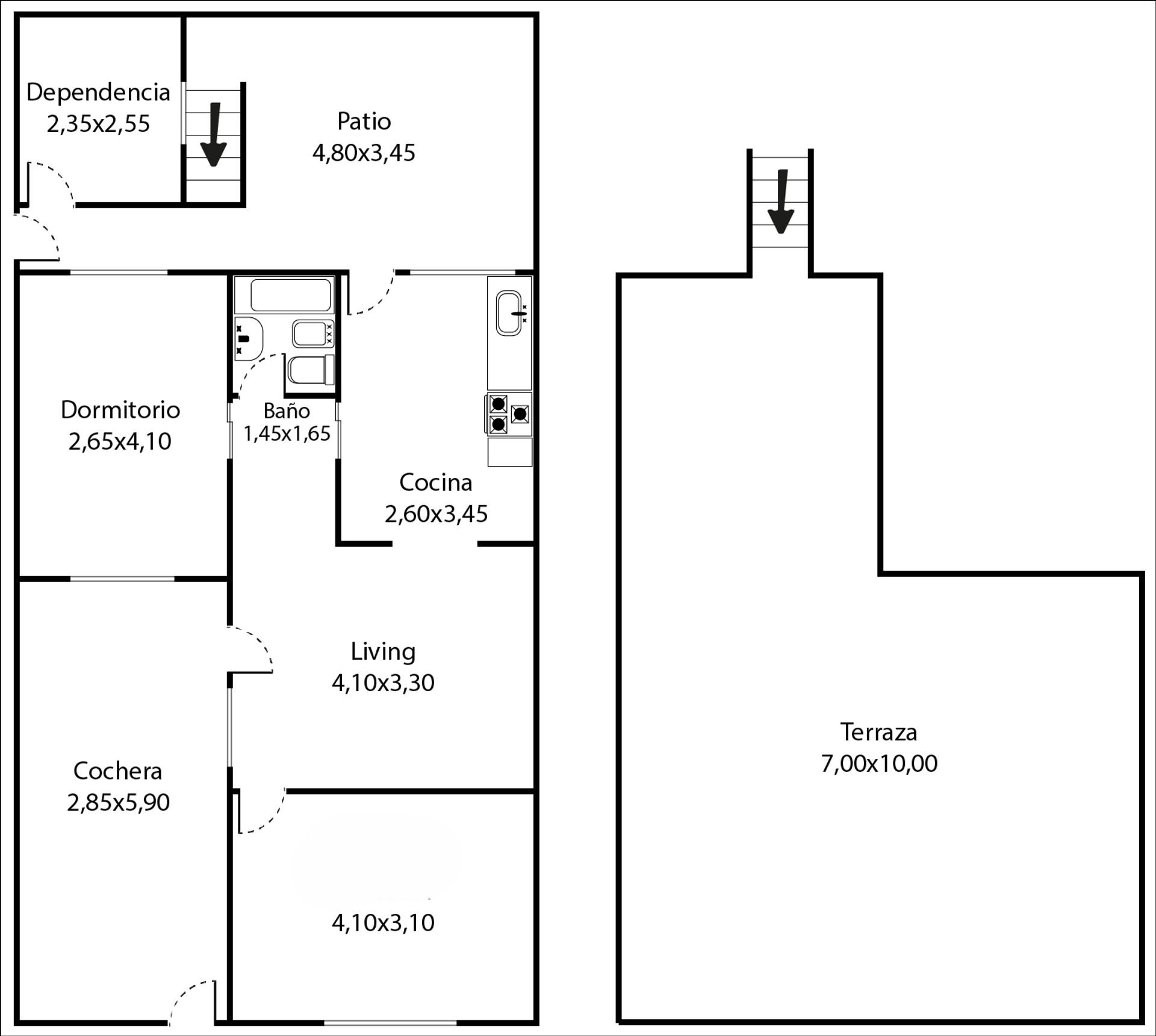
Casa de tres ambientes con patio, terraza y cochera, construida en 1959, que ofrece una base sólida para refaccionar y diseñar según los gustos y necesidades del propietario. La vivienda cuenta con 76 m² cubiertos y 86 m² descubiertos, combinando espacios amplios y una distribución funcional dentro del partido de Vicente López.

El interior dispone de un living comedor cómodo, una cocina independiente con espacio para mesa, dos dormitorios bien distribuidos y un lavadero semicubierto que facilita las tareas del hogar. En el exterior se aprecia un patio de 16 m², ideal para disfrutar al aire libre, y una terraza de 70 m² que brinda la posibilidad de ampliar el espacio, crear un quincho o un jardín elevado. La cochera cubierta de 17 m² ofrece acceso directo desde la calle, asegurando comodidad y seguridad.

La propiedad se ubica en la zona de José Hernández, en pleno corazón de Munro. Se trata de un entorno residencial tranquilo, pero con excelente conectividad: a pocas cuadras de Av. Vélez Sarsfield y Av. Mitre, con múltiples líneas de colectivos; cercanía a la Estación Munro del Tren Belgrano Norte, facilitando la conexión con la Ciudad Autónoma de Buenos Aires; y rodeada de comercios, colegios, centros de salud y espacios verdes. El acceso rápido a la Panamericana y a la General Paz permite una movilidad fluida hacia distintos puntos de la zona norte y el capital.

Esta casa representa una oportunidad única para quienes buscan invertir, ampliar o vivir en una zona con gran proyección. La posibilidad de refaccionar la vivienda permite adaptarla completamente al estilo y las necesidades del futuro propietario, convirtiéndola en un hogar verdaderamente personalizado.

Ubicación y Entorno

Vicente Lopez · Munro · Buenos Aires

Enviar Consulta a Venta Casa en Munro 3 ambientes con cochera