Departamento en dúplex - 3 amb - En pozo - Olivos

Proyectos de Inversión - Departamentos en Pozo en Vicente Lopez · Olivos · Buenos Aires
USD 275.000 Venta Proyecto de inversión 3 amb. 2 163 m² 113 m² cub.

Información principal

Operación
Venta
Tipo de inversión
Venta
Tipo de propiedad
Departamento Dúplex
Estado del negocio
Proyecto de inversión
Condición
En Construcción
Superficie total
163 m²
Superficie cubierta
113 m²
Ambientes
3
Baños
2
Dormitorios
2
Financiación
Disponible
En Pozo

Servicios y Comodidades

Ambientes
  • Balcón
  • Baño
  • Cocina
  • Cocina/Comedor
  • Comedor
  • Dormitorio
  • Living
  • Living/Comedor
  • Terraza
  • Vestidor
Características
  • Disposición Frente
  • Placard
Comodidades
  • Portón Automático
Servicios
  • Agua
  • Agua Corriente
  • Desague Cloacal
  • Electricidad
  • Gas
  • Internet
  • Teléfono
  • Televisión por Cable

Descripción del Inmueble

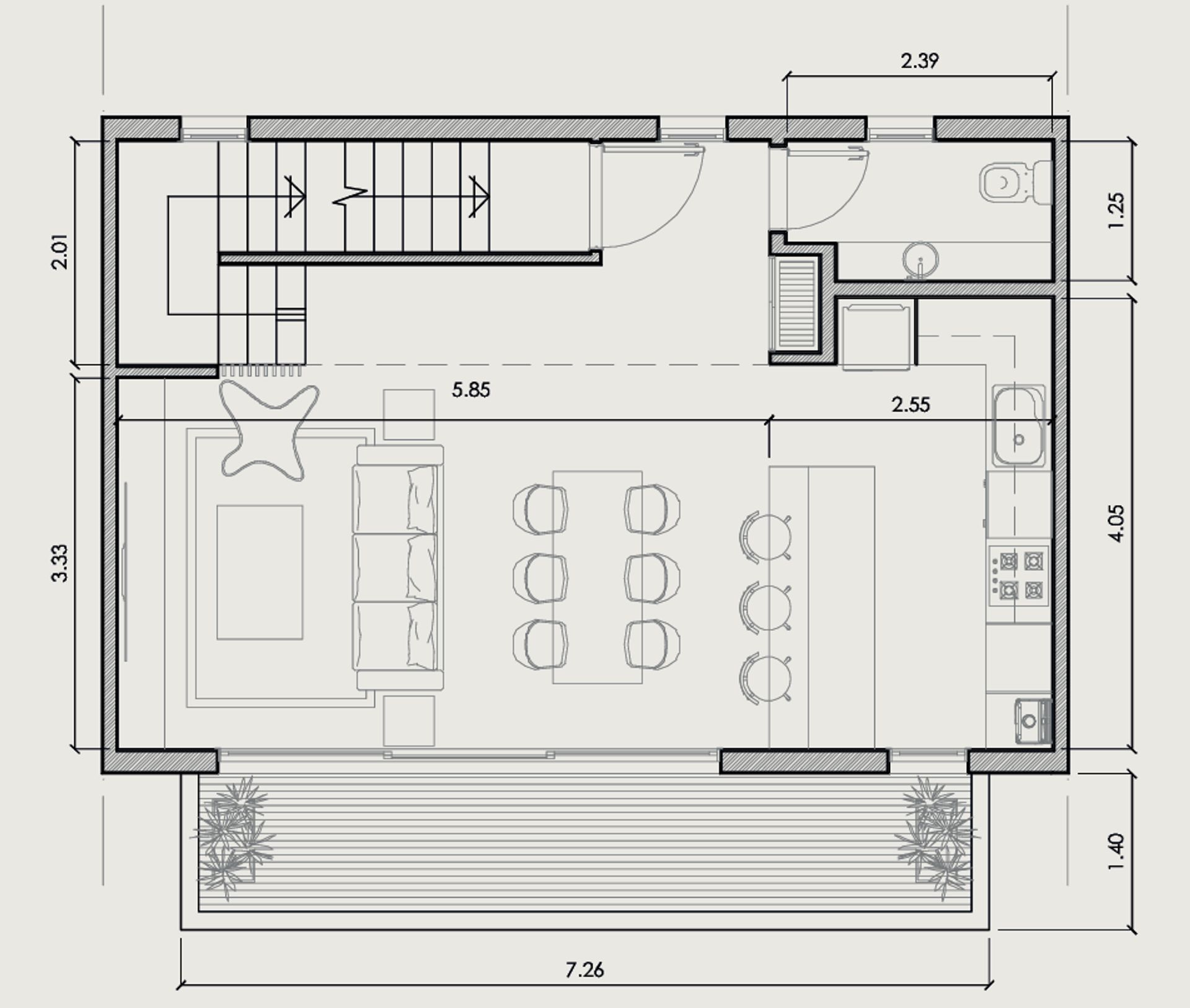
UNIDAD FUNCIONAL "C" ubicada en 1er piso. 3 AMBIENTES CON TERRAZA, BALCÓN Y COCHERA

Entrega Estimada: Diciembre 2026

Superficie total: 163 m2
Superficie Cubierta: 113 m2
Superficie Descubierta: 50 m2

Distribución de la unidad:
La primera planta cuenta con toilette, cocina y living comedor integrados.
En la segunda planta se encuentran un baño completo, dos dormitorios con placard (uno de ellos en suite).
En la tercera planta tenemos la terraza con parrilla y lavadero.

Complejo multifamiliar de 5 unidades de viviendas divididas en 3 bloques.

Detalles de la calidad constructiva:
Caldera Dual para agua caliente y calefacción.
Calefacción por piso radiante en todos los ambientes de Estar- Comedor- Dormitorios- Baños.
Aberturas con D.V.H.
Preinstalación de aire acondicionado en todos los ambientes.

Ubicación y Entorno

Vicente Lopez · Olivos · Buenos Aires

Enviar Consulta a Departamento en dúplex - 3 amb - En pozo - Olivos