Ph / Casa Uf A Estrenar Con Cochera Y Jardin

Propiedades Residenciales - PH en San Isidro · Buenos Aires
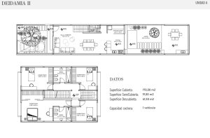
USD 2.400 Alquiler 4 amb. 3 1 250 m² 170 m² cub.

Información principal

Operación
Alquiler
Tipo de propiedad
PH
Condición
Excelente, En Construcción
Superficie total
250 m²
Superficie cubierta
170 m²
Ambientes
4
Baños
3
Dormitorios
4

Servicios y Comodidades

Ambientes
  • Baño
  • Cocina
  • Cocina/Comedor
  • Comedor
  • Dormitorio
  • Jardín
  • Lavadero
  • Living
  • Playroom
  • Quincho
  • Toilette
  • Vestidor
Características
  • Acceso de cochera, Rampa móvil
  • Disposición Frente
  • Orientación Norte
  • Orientación Oeste
Comodidades
  • Aire Acondicionado
  • Portón Automático

Descripción del Inmueble

Ubicado en la calle Blas Parera, a pocos metros del acceso a la Panamericana Tigre y a minutos de centros de salud, recreación y comercio, este PH de estilo moderno se encuentra en una zona privilegiada, cercana al Hipódromo y al Golf Club de San Isidro.

La vivienda se distribuye en dos niveles y cuenta con 170 m² de superficie cubierta, 19 m² semi cubiertos y 61 m² dedicados a jardín, patio y entrada. Se ingresa por un portón vehicular automático que protege una cochera privada. La planta baja alberga un amplio living-comedor integrado, una cocina completa, un office/lavadero con toilette, y un quincho semi cubierto ideal para parrilladas. En la planta alta se desarrollan cuatro dormitorios, uno de ellos en suite con baño propio, y un baño completo adicional. Todos los ambientes presentan pisos entablonados cerámicos con acabado de madera, aportando calidez y elegancia.

La propiedad dispone de instalación para sistema de alarma y preinstalación de aire acondicionado, garantizando comodidad y seguridad. La entrega está prevista para marzo de 2026, ofreciendo la oportunidad de vivir en un espacio contemporáneo y funcional en una ubicación estratégica.

Ubicación y Entorno

San Isidro · Buenos Aires

Enviar Consulta a Ph / Casa Uf A Estrenar Con Cochera Y Jardin