OFICINAS 450 m2 PLANTA LIBRE en OLIVO, 8 cocheras

Locales Comerciales - Oficina en Vicente Lopez · Olivos · Buenos Aires
USD 8.500 Alquiler 8 8 450 m²

Información principal

Operación
Alquiler
Tipo de propiedad
Oficina
Condición
Excelente
Superficie total
450 m²
Superficie cubierta
450 m²
Baños
8
Uso Profesional
Uso Comercial
Accesible

Servicios y Comodidades

Ambientes
  • Baño
  • Cocina
  • Otro
  • Sala de reuniones
Características
  • Acceso de cochera, Rampa fija
  • Disposición Frente
  • Orientación Este
Comodidades
  • Aire Acondicionado
  • Ascensor
  • Estacionamiento para visitas
  • Recepción
  • Seguridad
Servicios
  • Agua
  • Desague Cloacal
  • Electricidad
  • Gas
  • Internet
  • Teléfono

Descripción del Inmueble

Edificio corporativo de cinco pisos, con subsuelo y planta baja equipadas con cocheras.

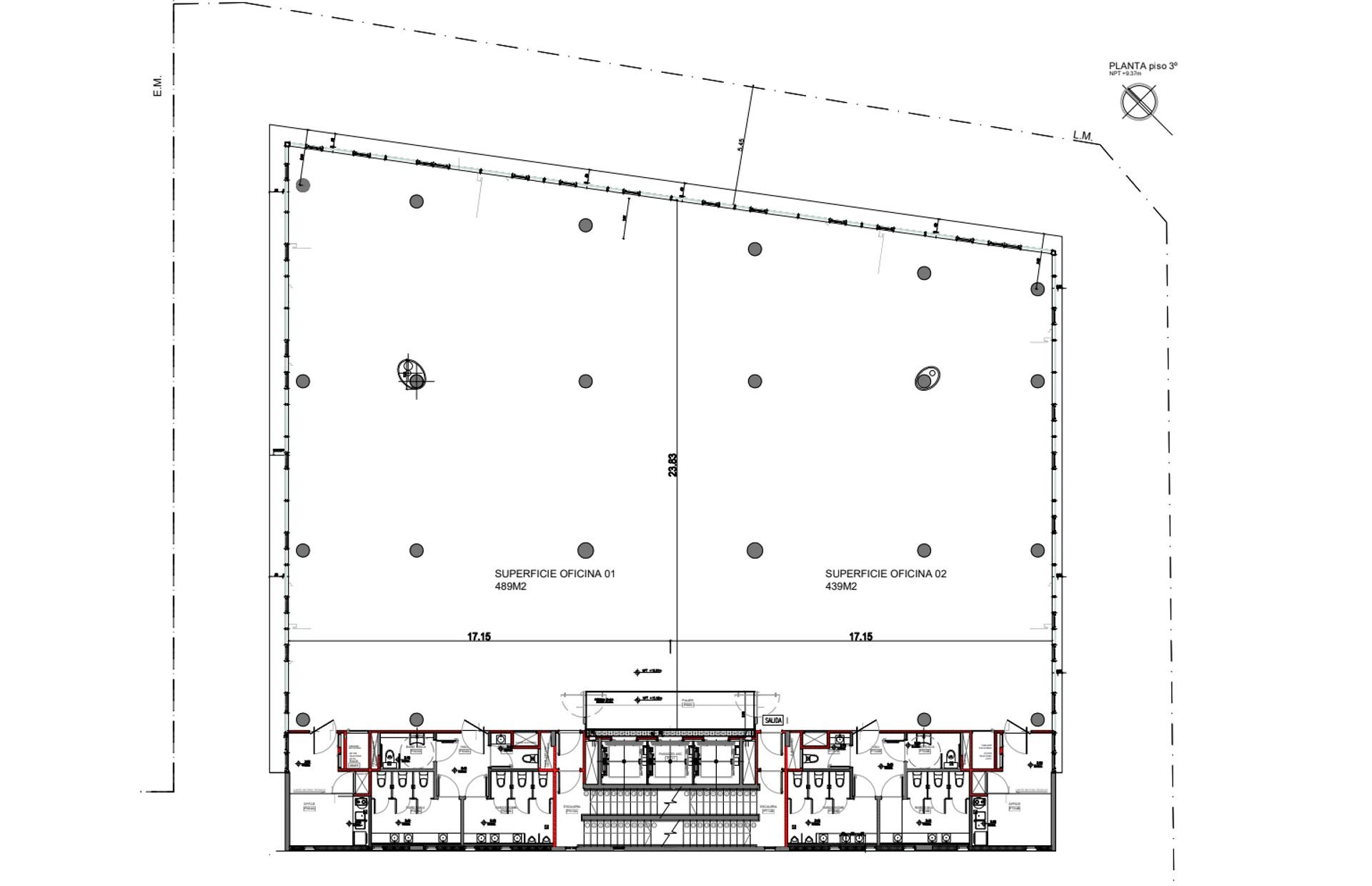
La planta libre de 450 m² ofrece un espacio flexible, ideal para oficinas o salas de trabajo colaborativo. Se ubica en el tercer piso, accesible desde la calle Italia, y cuenta con 8 cocheras fijas.

El terreno dispone de 2000 m². El edificio presenta una planta baja libre con hall de acceso y cocheras, seguida de cinco plantas libres: los pisos 2 a 5 miden 963 m² cada uno, mientras que el primer piso tiene 934 m². Cada nivel está diseñado para poder dividirse en semi‑pisos totalmente independientes.

La fachada, de Curtain Wall, utiliza vidrio doble hermético con cámara de aire, garantizando eficiencia energética y estética moderna. El acceso principal se realiza desde la calle Italia.

El sistema de elevación incluye una plataforma para personas con discapacidad y tres ascensores sincronizados de la marca Schindler, con capacidad para 11 personas y revestidos en acero inoxidable.

El estacionamiento consta de 82 espacios: 46 en la planta baja (26 cubiertas y 20 descubiertas) y 36 en el subsuelo a medio nivel (29 comunes y 7 para discapacitados, de 3,50 m de ancho). Además, se disponen de 8 cocheras de cortesía en los retiros de la planta baja.

El edificio garantiza seguridad 24 h mediante cuatro molinetes que conducen al hall central, equipado con tres ascensores de última generación, sistema de sprinklers, detectores de humo, piso técnico y grupo electrógeno. También incluye dos kitchenette.

El subsuelo y la planta baja cuentan con cocheras asignadas fijas. La planta de oficinas dispone de un grupo electrógeno de alta tensión para el piso completo, mientras que el edificio cuenta con otro generador para las áreas comunes y los ascensores.

Entre las características de la oficina se encuentran el sistema de refrigeración y calefacción DRV, ventanas de doble vidrio, piso técnico con alfombra de alto tránsito, techo suspendido con luminarias y una sala de reuniones que se puede expandir en tres sectores, con una capacidad máxima de 40 personas.

Los baños están distribuidos por sector, con tres sanitarios, un baño gerencial y uno para personas con discapacidad. Además, el edificio incluye 17 cocheras cubiertas fijas entre el subsuelo y la planta baja.

Las expensas son de 800.000 $ mensuales (marzo 2024).

Ubicación y Entorno

Vicente Lopez · Olivos · Buenos Aires

Enviar Consulta a OFICINAS 450 m2 PLANTA LIBRE en OLIVO, 8 cocheras

Atención: Esta propiedad posiblemente no se encuentre disponible.

Contactate con nosotros para verificar su disponibilidad actual o consultar por propiedades similares.